23
$2,699,000 Sale
Listed 128 days ago
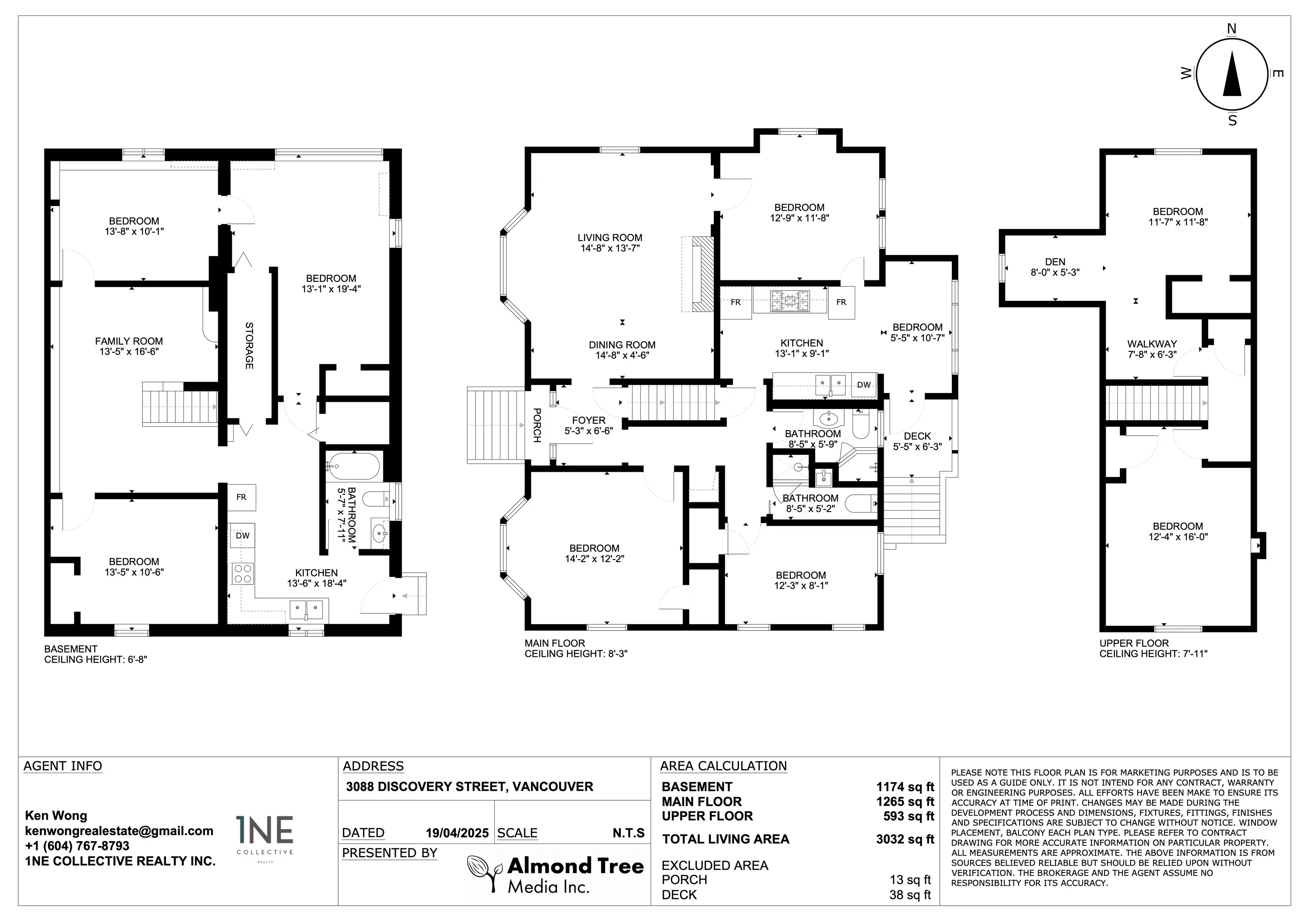
3088 Discovery Street
· 9
· 3
· -
· 3032
Key Facts
Key facts for 3088 Discovery Street
Property Type
House
Parking
-
MLS #
R3008276
Size
3032 sqft
Basement
Full
Listed on
-
Lot size
4941.00 sqft
Tax
$12,191.90 /yr
Days on Market
-
Year Built
1931
Maintenance Fee
-
Description
Prime Lot in Prestigious Point Grey, located just steps from transit, West 10th shops & cafés, and minutes to UBC. Surrounded by top-rated public and private schools including Lord Byng Secondary, Queen Elizabeth Elementary, West Point Grey Academy & St. George’s. Enjoy a peaceful, walkable lifestyl...e with access to the Westside’s most scenic parks & trails just moments away. Whether you're looking for a solid holding property or the perfect lot to build your dream home, this location checks all the boxes! **Golden opportunity to purchase 2 side-by-side homes with 3090 Discovery Street
Similar Properties (No results)
Room Types
Living Room
-
Dimensions 13'7 x 14'8
199.22 sqft
Dining Room
-
Dimensions 4'6 x 14'8
66 sqft
Kitchen
-
Dimensions 9'1 x 13'1
118.84 sqft
Courtesy of: 1NE Collective Realty Inc.